Castor Solo

CAS­TOR SOLO

Castor Solo

Rzuty

Castor Solo - przekrój
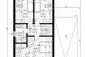
Castor Solo - rzut parteru
Castor Solo - rzut piętra

Para­me­try podstawowe:

  • Powierzch­nia użytkowa: 98,60
  • Powierzch­nia całkowita: 124,90
  • Powierzch­nia garażu: 22,60
  • Powierzch­nia zabu­dowy: 91,50

Ściany:

  • Ściany zewnętrzne: U=0,165 W/(m²K)
  • Prze­sunię­cie fazowe temperatury=14 h
  • Płyta GK
  • Ruszt drew­ni­any (przedś­cianka instalacyjna)
  • Płyta OSB3 uszczel­niona taśmą paroizolacyjną
  • Kon­strukcja z drewna C24 KVH
  • Izo­lacja z wełny drzewnej

Strop międzykondy­gna­cyjny:

  • Płyta OSB3
  • Ste­ico Isorel (izo­lacja akusty­czna od dźwięków uderzeniowych)
  • Kon­strukcja z drewna C24 KVH
  • Izo­lacja z wełny drzewnej (izo­lacja akusty­czna od dźwięków powietrznych)

Strop nad piętrem:

  • U=0,142 W/(m²•K)
  • Prze­sunię­cie fazowe tem­per­atury = 13h
  • Deskowanie + schody strychowe – opcja dodatkowa
  • Ruszt drew­ni­any
  • Izo­lacja z wełny drzewnej
  • Kon­strukcja z drewna C24 KVH
  • Folia paroizo­la­cyjna

Dach:

  • Bla­chodachówka, kolor antracyt
  • Łaty /​kon­trłaty
  • Mem­brana wiatroizolacyjna
  • Wiązary z drewna C24 KVH

Dach lub strop nad parterem:

  • U=0,135 W/(m²K)
  • Prze­sunię­cie fazowe temperatury=16 h

Tech­nolo­gia:

  • Wszys­tkie nasze domy wyko­nane są w tech­nologii pre­fab­rykowanej, ustaw­iane na wyle­wanej pły­cie fundamentowej.
  • Wszys­tkie mate­ri­ały pochodzą od jed­nego producenta.
dowiedz się więcej